Casa Dos Marias

Tipo de proyecto
Vivienda no VIS
Área construida [m2]
350.00
Altura máxima [m]
7.00
Número de pisos
2
Localización
Santa marta - Magadalena
Descripción del proyecto

La Casa Dos Marías es un proyecto de una vivienda unifamiliar de 350 m2 localizada en el sector de Los
Arhuacos, Santa Marta. El proyecto se desarrolla en un profundo predio de 955m2 entre el Mar Caribe y la
Sierra Nevada de Santa Marta.
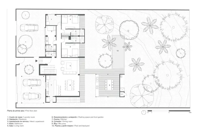
El proyecto se compone de un prisma rectangular de dos niveles implantado lo más cercano a la calle para
maximizar el espacio del jardín trasero. El primer nivel se divide en dos zonas, una zona social que contiene
el vestíbulo, la sala, comedor y la cocina; en la zona privada se ubican dos habitaciones secundarias y una

Total carbono proyecto [kgCO2eq]
0,00
Total costo materiales convencionales
$ 0,00
Total costo materiales sostenido
$ 0,00